Zum Hauptinhalt springen Zur Suche springen Zur Hauptnavigation springen

Menü

Beschreibung

Produktinformationen "Schüco 241700 Riegel-Fallenschloss (Vorgängerartikel 211708)"

 
Lieferumfang je Stück: ein Riegel-Fallenschloss, ohne Zubehör 

Abmessungen: siehe technische Zeichnung  

Produktmerkmale:
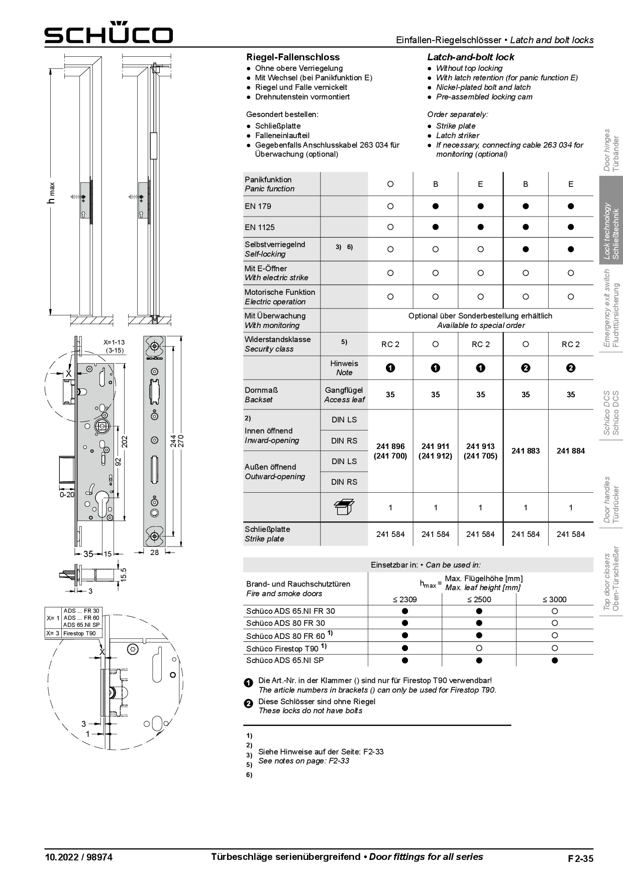
  • Dornmaß: 35 mm
  • Drückernuss: 9 mm
  • DIN-Richtung: links oder rechts
  • Öffnungsrichtung: innen oder außen öffnend
  • Stulp: Flachstulp
  • Panikfunktion: ohne
  • Verriegelungsart: Einfachverriegelung
  • Selbstverriegelung: nein
  • Überwachung: nein 

Weitere Merkmale:        
  • ohne obere Verriegelung
  • Falle und Riegel vernickelt
  • Drehnutenstein vormontiert 

Herstellerangaben:
Firma: Schüco
Herstellerartikel: 241700
Vorgängerartikel: 211708   


Hinweis: Wir empfehlen, das Austauschen von Beschlagteilen sowie das Justieren des Fensters/der Tür durch eine Fachkraft vornehmen zu lassen

Eigenschaften

Antipanikfunktion: ohne
Befestigungsachse: symmetrisch
Dornmaß: 35 mm
Drückernuss: 9 mm
Produktfamilie: S.B-1828x
Stulp: Flachstulp
Verriegelungsart: Einfachverriegelung
einsetzbar bei: 1-flg. Türen, 2-flg. Türen (Gangflügel, nur Teilpanik möglich!)
geeignet für Serie: FireStop T90 (Brandschutz)

Datenblätter 1

Herstellerinformation nach GPSR

SCHÜCO

Angaben zur verantwortliche  Person in der EU (Informationspflichten zur GPSR Produktsicherheitsverordnung):
Schüco International KG
Karolinenstraße 1-15
33609 Bielefeld
Deutschland

Telefon: +49 521 7830
E-Mail: info@schueco.com

Produktgalerie überspringen

Passendes Zubehör

Schüco 241584 Schließplatte, feststehend (Vorgängerartikel 241542 + 266071) Schüco 241584 Schließplatte, feststehend (Vorgängerartikel 241542 + 266071)
Schüco 241584 Schließplatte, feststehend (Vorgängerartikel 241542 + 266071)

Lieferumfang je Stück: eine Schließplatte, inkl. vormontierte DrehnutensteineAbmessungen: Länge: 270 mmBreite: 28 mmDicke: 3 mmFallenausschnitt Breite: 15 mmFallenausschnitt Verengung Breite: 12 mmRiegelausschnitt Breite: 12 mmProduktmerkmale: DIN-Richtung: links oder rechtsÖffnungsrichtung: außen öffnend Stulp: FlachstulpVerriegelungsart: Einfachverriegelungmit vormontierten Drehnutensteinenfür Riegel-FallenschlösserHerstellerangaben:Firma: SchücoHerstellerartikel: 241584Vorgängerartikel: 241542 + 266071Hinweis: Wir empfehlen, das Austauschen von Beschlagteilen sowie das Justieren des Fensters/der Tür durch eine Fachkraft vornehmen zu lassen

Regulärer Preis: 18,39 €
Produktgalerie überspringen

Ähnliche Artikel

Schüco 241896 Riegel-Fallenschloss Schüco 241896 Riegel-Fallenschloss
Schüco 241896 Riegel-Fallenschloss

Lieferumfang je Stück: ein Riegel-Fallenschloss, ohne Zubehör Abmessungen: siehe technische Zeichnung  Produktmerkmale: Dornmaß: 35 mm Drückernuss: 9 mm DIN-Richtung: links oder rechts Öffnungsrichtung: innen oder außen öffnend Stulp: FlachstulpPanikfunktion: ohne Verriegelungsart: Einfachverriegelung Selbstverriegelung: nein Überwachung: nein Widerstandsklasse: RC2 Weitere Merkmale:         ohne obere Verriegelung Falle umlegbar Falle und Riegel vernickelt Drehnutenstein vormontiert Herstellerangaben: Firma: Schüco Herstellerartikel: 241896   Hinweis: Wir empfehlen, das Austauschen von Beschlagteilen sowie das Justieren des Fensters/der Tür durch eine Fachkraft vornehmen zu lassen

Regulärer Preis: 79,99 €
Schüco 241911 Antipanik Riegel-Fallenschloss, Funktion B Schüco 241911 Antipanik Riegel-Fallenschloss, Funktion B
Schüco 241911 Antipanik Riegel-Fallenschloss, Funktion B

Lieferumfang je Stück: ein Antipanik Riegel-Fallenschloss, ohne Zubehör Abmessungen: siehe technische Zeichnung  Produktmerkmale: Dornmaß: 35 mm Drückernuss: 9 mm DIN-Richtung: links oder rechts Öffnungsrichtung: innen oder außen öffnend Stulp: Flachstulp, INOX Panikfunktion: B Zulassung: EN 179 EN 1125     Verriegelungsart: Einfachverriegelung Selbstverriegelung: nein Überwachung: nein                 Weitere Merkmale:         ohne obere Verriegelung Falle und Riegel vernickelt Drehnutenstein vormontiert Panikfunktion B: UmschaltfunktionDie abgesperrte Tür kann von innen immer über die Panikfunktion geöffnet werden.  Der äußere Drücker ist in der Regel ausgekuppelt in Leerlauffunktion. Durch Entriegeln mit einem Schlüssel wird die Normalfunktion erreicht, so dass die Tür von innen und außen zu öffnen ist. Durch eine erneute Schlüsselbetätigung in Abschließrichtung wird wieder die Grundstellung hergestellt.Handhabe innen: mit Türdrücker (bei EN 179) mit Stangengriff oder Druckstange (bei EN 1125) Handhabe außen: mit Türdrücker Herstellerangaben: Firma: Schüco Herstellerartikel: 241911   Hinweis: Wir empfehlen, das Austauschen von Beschlagteilen sowie das Justieren des Fensters/der Tür durch eine Fachkraft vornehmen zu lassen

Regulärer Preis: 169,99 €
Schüco 241912 Antipanik Riegel-Fallenschloss, Funktion B (Vorgängerartikel 241701 + 241702 + 241703 + 241704) Schüco 241912 Antipanik Riegel-Fallenschloss, Funktion B (Vorgängerartikel 241701 + 241702 + 241703 + 241704)
Schüco 241912 Antipanik Riegel-Fallenschloss, Funktion B (Vorgängerartikel 241701 + 241702 + 241703 + 241704)

Lieferumfang je Stück: ein Antipanik Riegel-Fallenschloss, inkl. ProfilzylinderschraubeAbmessungen: siehe technische Zeichnung  Produktmerkmale: Dornmaß: 35 mm Drückernuss: 9 mm DIN-Richtung: links oder rechts Öffnungsrichtung: innen oder außen öffnend Stulp: Flachstulp, INOXPanikfunktion: BZulassung: EN 179 EN 1125Verriegelungsart: Einfachverriegelung Selbstverriegelung: nein Überwachung: neinWeitere Merkmale:         ohne obere VerriegelungFalle und Riegel vernickeltDrehnutenstein vormontiertPanikfunktion B:UmschaltfunktionDie abgesperrte Tür kann von innen immer über die Panikfunktion geöffnet werden. Der äußere Drücker ist in der Regel ausgekuppelt in Leerlauffunktion. Durch Entriegeln mit einem Schlüssel wird die Normalfunktion erreicht, so dass die Tür von innen und außen zu öffnen ist. Durch eine erneute Schlüsselbetätigung in Abschließrichtung wird wieder die Grundstellung hergestellt.Handhabe innen:mit Türdrücker (bei EN 179)mit Stangengriff oder Druckstange (bei EN 1125)Handhabe außen: mit TürgriffHerstellerangaben: Firma: Schüco Herstellerartikel: 241912Vorgängerartikel: 241701 + 241702 + 241703 + 241704 Hinweis: Wir empfehlen, das Austauschen von Beschlagteilen sowie das Justieren des Fensters/der Tür durch eine Fachkraft vornehmen zu lassen

Regulärer Preis: 189,99 €
Schüco 241913 Antipanik-Riegel-Fallenschloss, Funktion E Schüco 241913 Antipanik-Riegel-Fallenschloss, Funktion E
Schüco 241913 Antipanik-Riegel-Fallenschloss, Funktion E

Lieferumfang je Stück: ein Antipanik Riegel-Fallenschloss, ohne ZubehörAbmessungen: siehe technische Zeichnung Produktmerkmale:Dornmaß: 35 mmDrückernuss: 9 mmDIN-Richtung: links oder rechtsÖffnungsrichtung: außen öffnendStulp: Flachstulp, INOXPanikfunktion: EZulassung:EN 179EN 1125     Verriegelungsart: EinfachverriegelungSelbstverriegelung: neinÜberwachung: neinWiderstandsklasse: RC2                Weitere Merkmale:        ohne obere Verriegelungmit Wechsel Falle und Riegel vernickeltDrehnutenstein vormontiertPanikfunktion E:WechselfunktionDie abgesperrte Tür kann von innen immer über die Panikfunktion geöffnet werden – von außen nur mit einem SchlüsselHandhabe innen:mit Türdrücker (bei EN 179)mit Stangengriff oder Druckstange (bei EN 1125)Handhabe außen: mit TürgriffHerstellerangaben:Firma: SchücoHerstellerartikel: 241913  Hinweis: Wir empfehlen, das Austauschen von Beschlagteilen sowie das Justieren des Fensters/der Tür durch eine Fachkraft vornehmen zu lassen

Regulärer Preis: 139,99 €
Schüco 241705 Antipanik-Riegel-Fallenschloss, Funktion E (Vorgängerartikel 211725) Schüco 241705 Antipanik-Riegel-Fallenschloss, Funktion E (Vorgängerartikel 211725)
Schüco 241705 Antipanik-Riegel-Fallenschloss, Funktion E (Vorgängerartikel 211725)

Lieferumfang je Stück: ein Antipanik Riegel-Fallenschloss, ohne ZubehörAbmessungen: siehe technische Zeichnung  Produktmerkmale: Dornmaß: 35 mm Drückernuss: 9 mm DIN-Richtung: links oder rechts Öffnungsrichtung: außen öffnend Stulp: Flachstulp, INOXPanikfunktion: EZulassung: EN 179 EN 1125Verriegelungsart: Einfachverriegelung Selbstverriegelung: nein Widerstandsklasse: RC2  Überwachung: neinWeitere Merkmale:         ohne obere Verriegelung mit WechselFalle und Riegel vernickelt Drehnutenstein vormontiertPanikfunktion E:WechselfunktionDie abgesperrte Tür kann von innen immer über die Antipanikfunktion geöffnet werden - von außen nur mit einem Schlüssel.Handhabe innen:mit Türdrücker (bei EN 179)mit Stangengriff oder Druckstange (bei EN 1125)Handhabe außen: mit TürgriffHerstellerangaben: Firma: Schüco Herstellerartikel: 241705Vorgängerartikel: 211725Hinweis: Wir empfehlen, das Austauschen von Beschlagteilen sowie das Justieren des Fensters/der Tür durch eine Fachkraft vornehmen zu lassen

Regulärer Preis: 159,99 €