Zum Hauptinhalt springen Zur Suche springen Zur Hauptnavigation springen

Menü

Beschreibung

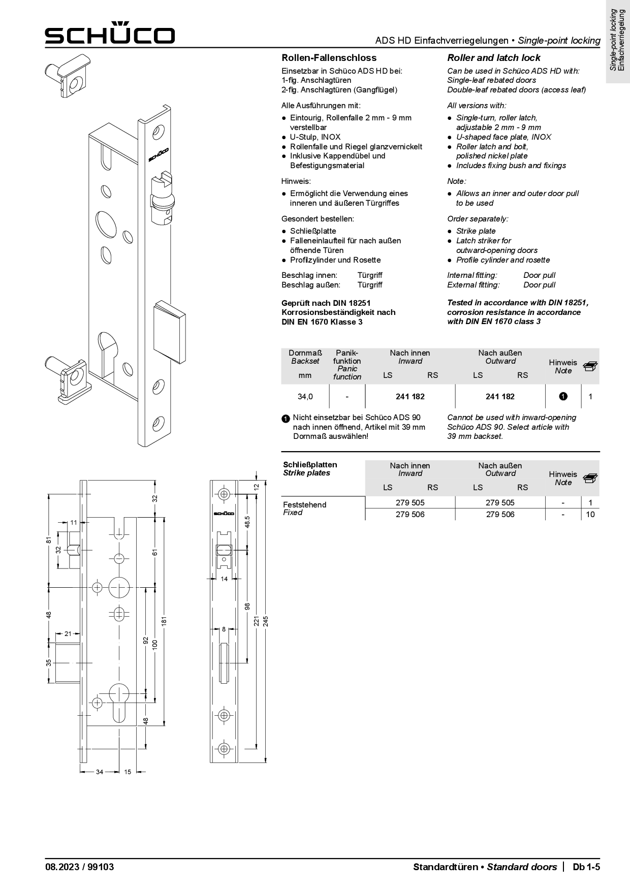
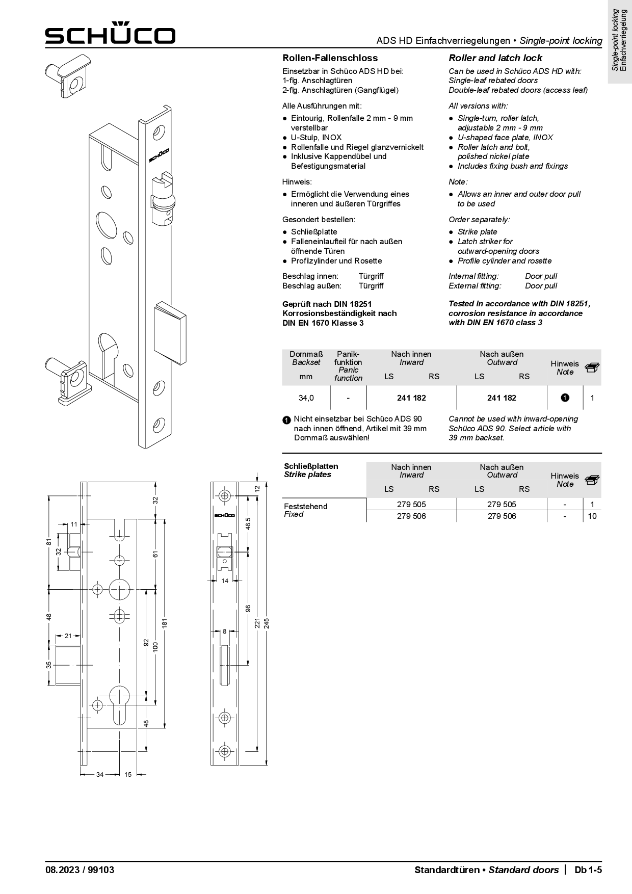
Produktinformationen "Schüco 241182 Rollen-Fallenschloss "


Lieferumfang je Stück: ein Rollen-Fallenschloss, inkl. Kappendübel und Befestigungsmaterial

Abmessungen: siehe technische Zeichnung  

Produktmerkmale:
  • Dornmaß: 34 mm
  • Drückernuss: -
  • DIN-Richtung: links oder rechts
  • Öffnungsrichtung: innen oder außen öffnend
  • Stulp: U-Stulp, INOX
  • Panikfunktion: ohne
  • Verriegelungsart: Einfachverriegelung
  • Selbstverriegelung: nein
  • Überwachung: nein
  • Geprüft:
    DIN 18251-2: Klasse 3
    Korrosionsbeständigkeit DIN EN 1670: Klasse 3

Weitere Merkmale:        
  • 1-tourig, Rollenfalle 2 mm – 9mm 
  • Rollenfalle und Riegel glanzvernickelt 
  • ermöglicht die Verwendung eines inneren und äußeren Türgriffes 

Beschläge:
  • Beschlag innen: Türgriff
  • Beschlag außen: Türgriff

Herstellerangaben:
Firma: Schüco
Herstellerartikel: 241182


Hinweis: Wir empfehlen, das Austauschen von Beschlagteilen sowie das Justieren des Fensters/der Tür durch eine Fachkraft vornehmen zu lassen

Eigenschaften

Antipanikfunktion: ohne
Befestigungsachse: symmetrisch
Dornmaß: 34 mm
Stulp: U-Stulp
Verriegelungsart: Einfachverriegelung
einsetzbar bei: 1-flg. Türen, 2-flg. Türen
geeignet für Serie: ADS 50.NI, ADS 70.HI , ADS 70 HD.HI, ADS 75.SI, ADS 75 HD.HI

Datenblätter 1

Herstellerinformation nach GPSR

SCHÜCO

Angaben zur verantwortliche  Person in der EU (Informationspflichten zur GPSR Produktsicherheitsverordnung):
Schüco International KG
Karolinenstraße 1-15
33609 Bielefeld
Deutschland

Telefon: +49 521 7830
E-Mail: info@schueco.com

Produktgalerie überspringen

Passendes Zubehör

Schüco 227741 Ersatzteil Kappendübel Schüco 227741 Ersatzteil Kappendübel
Schüco 227741 Ersatzteil Kappendübel

Lieferumfang je Stück: ein Kappendübel, inkl. BefestigungsmaterialProduktmerkmale: Farbe: RAL 9005, schwarzMaterial: Kunststoff PA6zur Befestigung von Schlössern und Schließplatten mit U-StulpHerstellerangaben: Firma: Schüco Herstellerartikel: 227741Hinweis: Wir empfehlen, das Austauschen von Beschlagteilen sowie das Justieren des Fensters/der Tür durch eine Fachkraft vornehmen zu lassen

Regulärer Preis: 2,99 €
Schüco 279505 Schließplatte, feststehend Schüco 279505 Schließplatte, feststehend
Schüco 279505 Schließplatte, feststehend

Lieferumfang je Stück: eine Schließplatte, inkl. Riegeltasche, Kappendübel und BefestigungsmaterialProduktmerkmale: DIN-Richtung: links oder rechtsÖffnungsrichtung: innen oder außen öffnend Stulp: U-Stulp, Edelstahl 24 x 5 mmVerriegelungsart: EinfachverriegelungHerstellerangaben: Firma: Schüco Herstellerartikel: 279505 Hinweis: Wir empfehlen, das Austauschen von Beschlagteilen sowie das Justieren des Fensters/der Tür durch eine Fachkraft vornehmen zu lassen

Regulärer Preis: 13,99 €
Schüco 209756 Schließplatte, feststehend (Vorgängerartikel 209758 + 209759) Schüco 209756 Schließplatte, feststehend (Vorgängerartikel 209758 + 209759)
Schüco 209756 Schließplatte, feststehend (Vorgängerartikel 209758 + 209759)

Lieferumfang je Stück: eine Schließplatte, inkl. Riegeltasche, Kappendübel und Befestigungsmaterial Abmessungen:  Gesamtlänge: 235 mm Befestigungsbohrungen: 210 mm U-Stulp: 24 x 5 mm Fallenausschnitt: 44 mm Riegelausschnitt: 55 mm Abstand zwischen Riegel- und Fallenausschnitt: 40 mm Produktmerkmale: DIN-Richtung: links oder rechts Öffnungsrichtung: innen oder außen öffnend Stulp: U-Stulp, Edelstahl Verriegelungsart: Einfachverriegelung Herstellerangaben: Firma: Schüco Herstellerartikel: 209756 Vorgängerartikel: 209758 + 209759      Hinweis: Wir empfehlen, das Austauschen von Beschlagteilen sowie das Justieren des Fensters/der Tür durch eine Fachkraft vornehmen zu lassen  

Regulärer Preis: 28,99 €